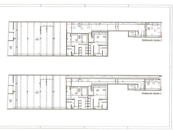
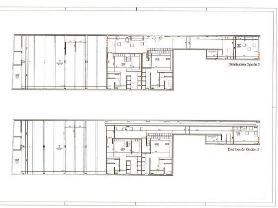
Tipo
Comercial |
Superficie
614 м2
Superficie útil
м2
Habitaciones
Dormitorios
Baños
Parcela
м2
Caracteristicas:


